House J (Unbuild)
OVERVIEW
郊外型の4人家族を想定した住宅の提案で、延床面積を40坪以下で計画。子どもが独立した後のことを考えてコンパクトな家を目指した。またL型の平面はウチとソトの繋がりを意識し、どの居室からでも庭を眺められるようにした。

1階中央の廊下兼本棚スペースは開放的なエリアとし、庭を眺めながら読書ができるように工夫した。



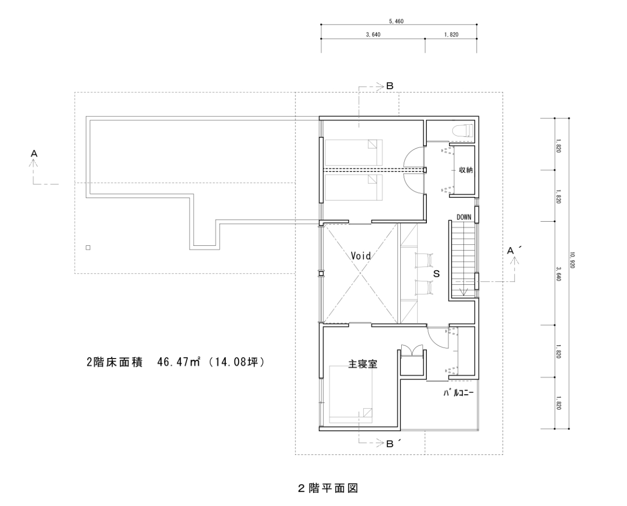
2階の吹抜に面した部分はスタディスペースとして子供たちの勉強場所とした。

庭にはサクラ・ヒメシャラ・ハナミズキなどを植える計画とした。
