House K (Unbuild)
OVERVIEW
六甲山麓に計画提案した3人家族の住宅。ご夫婦でリモートワークが多く、2階に専用の書斎を設けてプライベートと仕事の両立ができるようなプランとした。吹抜を用いて1階リビングと2階廊下及び主寝室を繋ぐことで家族の距離を近づけた。

南立面図・西立面図

断面パース1

断面パース2
1階平面図

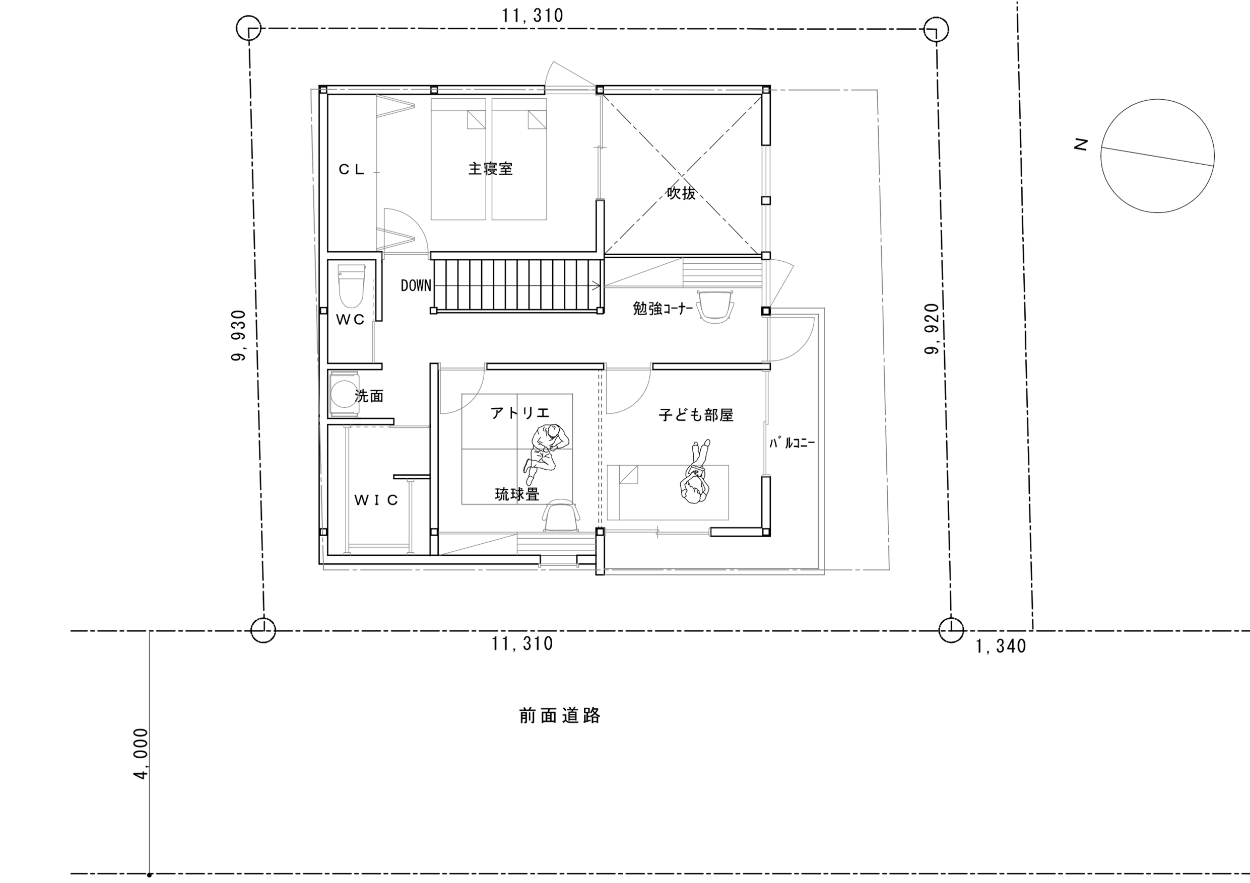
2階平面図
六甲山麓に計画提案した3人家族の住宅。ご夫婦でリモートワークが多く、2階に専用の書斎を設けてプライベートと仕事の両立ができるようなプランとした。吹抜を用いて1階リビングと2階廊下及び主寝室を繋ぐことで家族の距離を近づけた。

南立面図・西立面図

断面パース1

断面パース2
1階平面図

2階平面図